Продам двухкомнатную квартиру в новостройке 44.6 м.кв.

Объявление в архиве
6 637 950 руб.
Ростов-на-Дону , город Ростов-на-Дону, Элеваторный переулок, д.1
Отдел продаж
Контактные данные скрыты, так как объявление находится в архиве
Данные актуальны на 02.04.2026
Пожаловаться на объявление
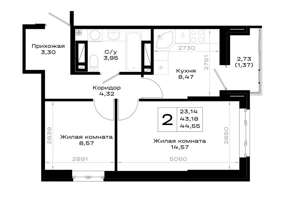
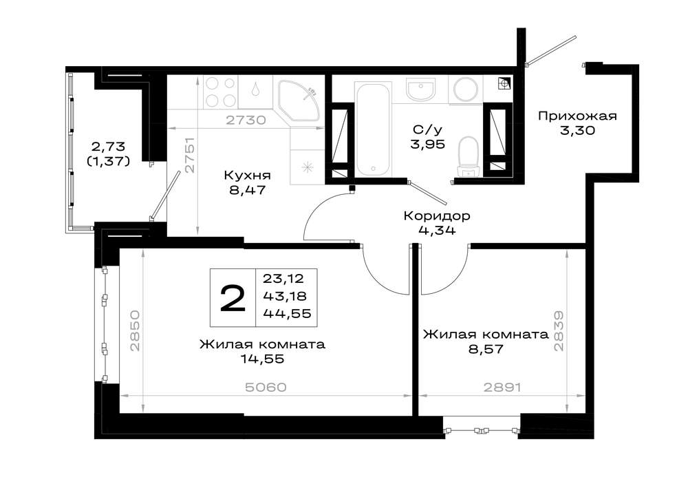
Продается 2-комн. квартира, площадью 44.55 м2 в монолитно-кирпичной новостройке. Возможен вариант покупки с использованием ипотечных средств, есть рассрочка, возможна покупка с использованием материнского капитала, есть военная ипотека. Жилая площадь 23.12 м2, кухня 8.47 м2, предчистовая отделка. Квартира располагается на 3 этаже 20-этажного дома в ЖК Октябрь Парк. Застройщик - ГК ССК, сдача дома - IV квартал 2028 года. Дом оборудован пассажирским лифтом. Подземная парковка, парковка охраняется. Инфраструктура: детские площадки, спортивные площадки, места для отдыха, коммерческие объекты. Этот комплекс является истинным оазисом современного комфорта и уюта, где передовые архитектурные решения идеально дополнены ландшафтными элементами и стилем. Он предлагает не просто жильё, а место для жизни в городе, известном своим гостеприимством, развитой инфраструктурой и прекрасными возможностями для досуга и бизнеса. Дизайн, продуманный до мелочей: оформление холлов продолжает концепцию двора и лаконично сочетается с обрамлением здания. Здесь экологичные материалы и приятные спокойные тона, разные уровни освещения, почтовые ящики, просторные колясочные и удобные лапомойки. АКЦИЯ: Готовый ремонт «Стандарт» в подарок. В вашей квартире уже будет уложен ламинат, в санузле и прихожей - керамическая плитка, по периметру установлены пластиковые плинтуса в цвет пола. Стены оклеены обоями, а потолки оформлены белым матовым натяжным полотном во всех комнатах. В ванной комнате - полный комплект сантехники: ванна, раковина и унитаз, а также плитка на стенах и полу. Электрика продумана до деталей: установлены стильные чёрные розетки и выключатели, предусмотрены выводы под светильники. Акция действует на ограниченный пул квартир. Подробности уточняйте по телефону. Важно: при выборе акции «Ремонт стандарт в подарок» дополнительные скидки и другие акции не применяются. Аккредитованные банки: Совкомбанк, Альфа-Банк, Банк ДОМ. РФ, Промсвязьбанк, Банк ВТБ, Т-Банк, Россельхозбанк, МКБ. Позвоните и узнайте условия покупки прямо сейчас!

Параметры здания

Тип дома Монолитно-кирпичный Год постройки 2028 Дом сдан Нет Лифт Есть
Мусоропровод - Охрана/консьерж Нет Парковка Есть

Параметры объекта

Этаж 3 Этажность 20 Площадь комнат - Жилая площадь 23.12 м.кв. Площадь кухни 8.47 м.кв. Высота потолков - Покрытие пола - Санузел - Балкон -
Окна выходят - Телефон - Интернет - Мебель - Бытовая техника - Кондиционер - Отделка - От застройщика Нет

Параметры продажи

Тип продажи Первичная продажа Торг -
Ипотека Да
Динамика изменения цен на рынке недвижимости ?

За последние полгода средняя сумма за кв.м. выросла на 1999 руб. Колебание цен происходило от 136806 руб. до 145229 руб. На текущий момент наблюдается тенденция к росту цены.
Похожие объявления
Обновлено
01.04.2026
Фотографии
15
Объявление 5061358
Ростов-на-Дону, Ростов-на-Дону, Элеваторный переулок, д.1
6 814 620
руб. Продажа
44.5 м2
Обновлено
01.04.2026
Фотографии
15
Объявление 5061367
Ростов-на-Дону, Ростов-на-Дону, Элеваторный переулок, д.1
6 788 440
руб. Продажа
45.6 м2
Обновлено
31.03.2026
Фотографии
15
Объявление 5060934
Ростов-на-Дону, Ростов-на-Дону, Элеваторный переулок, д.1
6 637 950
руб. Продажа
44.6 м2
Обновлено
31.03.2026
Фотографии
15
Объявление 5061021
Ростов-на-Дону, Ростов-на-Дону, Элеваторный переулок, д.1
6 637 950
руб. Продажа
44.6 м2
Обновлено
30.03.2026
Фотографии
10
Объявление 5060828
Ростов-на-Дону, Ростов-на-Дону, Элеваторный переулок, д.1
6 637 950
руб. Продажа
44.6 м2
Обновлено
30.03.2026
Фотографии
10
Объявление 5060833
Ростов-на-Дону, Ростов-на-Дону, Элеваторный переулок, д.1
6 637 950
руб. Продажа
44.6 м2
Обновлено
30.03.2026
Фотографии
10
Объявление 5060788
Ростов-на-Дону, Ростов-на-Дону, Элеваторный переулок, д.1
6 637 950
руб. Продажа
44.6 м2
Обновлено
30.03.2026
Фотографии
10
Объявление 5060545
Ростов-на-Дону, Ростов-на-Дону, Элеваторный переулок, д.1
6 637 950
руб. Продажа
44.6 м2
Обновлено
30.03.2026
Фотографии
10
Объявление 5060793
Ростов-на-Дону, Ростов-на-Дону, Элеваторный переулок, д.1
6 637 950
руб. Продажа
44.6 м2
Обновлено
30.03.2026
Фотографии
15
Объявление 5060248
Ростов-на-Дону, Ростов-на-Дону, Элеваторный переулок, д.1
6 637 950
руб. Продажа
44.6 м2
Вход в личный кабинет